Architectes Compléter Renouveler Explorer

Renouveler

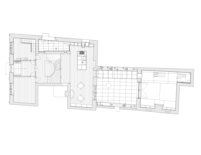
Date de livraison: 2020
Client: Privé
Adresse: Lisbonne, Portugal
Superficie: 700 m²
Cout de construction: 350’000 euros
Programme: Réhabilitation d’une maison de maître, patio et annexe

Maison individuelle